Placemaking - UT Campus
Tools: Adobe Illustrator & Autodesk Inventor
Timeframe: Fall 2019
Role: I co-designed in a group of 3 during the ideation phase, and then served as the primary designer to complete all models, floor plans, and elevations.
As an initiative of the UT College of Fine Arts, we adapted the antiquated brutalist building, the DFA, to the needs of modern student life.
Our central goal was to create a cohesive flow throughout an otherwise disjointed building. The building’s focal point is a dominating central stairwell that leads to multiple open lobbies. My contributions focused on the basement level and the stairwell leading into it.
1.5 Level stairwell
Outside the flow of foot traffic, there is a small alcove of dead space on the stairs. I chose to repurpose this area as a short-term rest stop for students.My aim was to serve students waiting for a class or taking a break on the long walk up and down the 5-story building.
Manage Pharmacy profiles
Feature: Profile management
Platforms: native and web
Timeframe: 2023
Role: I served as the primary designer leading the project. I worked with our product owner and product manager to define technical requirements and worked through to QA with engineers.




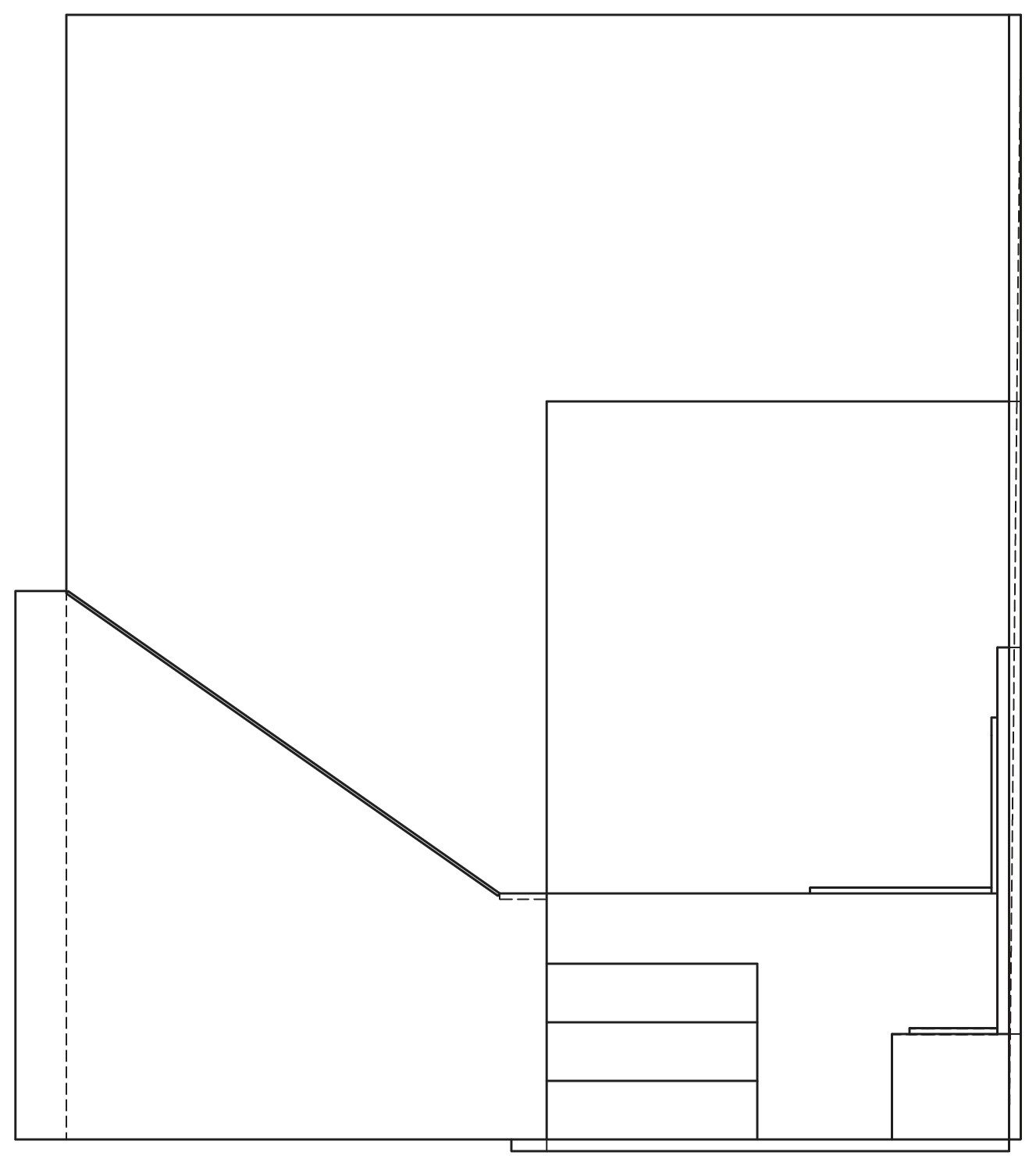
Floor plans and elevations

Top

Right

Basement level
At the bottom of the stairs, you enter into a windowless lobby outside of the Fine Arts Career Center. To give this liminal area function, I turned it into a multi-purpose space. It could serve as a small presentation stage for the career center as well as a lounge for students.



Floor plans and elevations
Front

Top

Right

Placemaking - UT Campus
Tools: Adobe Illustrator & Autodesk Inventor
Timeframe: Fall 2019
Role: I co-designed in a group of 3 during the ideation phase, and then served as the primary designer to complete all models, floor plans, and elevations.

As an initiative of the UT College of Fine Arts, we adapted the antiquated brutalist building, the DFA, to the needs of modern student life.
Our central goal was to create a cohesive flow throughout an otherwise disjointed building. The building’s focal point is a dominating central stairwell that leads to multiple open lobbies. My contributions focused on the basement level and the stairwell leading into it.
1.5 Level stairwell
Outside the flow of foot traffic, there is a small alcove of dead space on the stairs. I chose to repurpose this area as a short-term rest stop for students.My aim was to serve students waiting for a class or taking a break on the long walk up and down the 5-story building.



Floor plans and elevations

Top

Right

Basement level
At the bottom of the stairs, you enter into a windowless lobby outside of the Fine Arts Career Center. To give this liminal area function, I turned it into a multi-purpose space. It could serve as a small presentation stage for the career center as well as a lounge for students.



Floor plans and elevations
Front

Top

Right

Placemaking - UT Campus
Tools: Adobe Illustrator & Autodesk Inventor
Timeframe: Fall 2019
Role: I co-designed in a group of 3 during the ideation phase, and then served as the primary designer to complete all models, floor plans, and elevations.

As an initiative of the UT College of Fine Arts, we adapted the antiquated brutalist building, the DFA, to the needs of modern student life.
Our central goal was to create a cohesive flow throughout an otherwise disjointed building. The building’s focal point is a dominating central stairwell that leads to multiple open lobbies. My contributions focused on the basement level and the stairwell leading into it.
Manage Pharmacy profiles
Feature: Profile management
Platforms: native and web
Timeframe: 2023
Role: I served as the primary designer leading the project. I worked with our product owner and product manager to define technical requirements and worked through to QA with engineers.

1.5 Level stairwell
Outside the flow of foot traffic, there is a small alcove of dead space on the stairs. I chose to repurpose this area as a short-term rest stop for students.My aim was to serve students waiting for a class or taking a break on the long walk up and down the 5-story building.



Floor plans and elevations

Right

Top

Basement level
At the bottom of the stairs, you enter into a windowless lobby outside of the Fine Arts Career Center. To give this liminal area function, I turned it into a multi-purpose space. It could serve as a small presentation stage for the career center as well as a lounge for students.



Floor plans and elevations
Front

Top

Right
